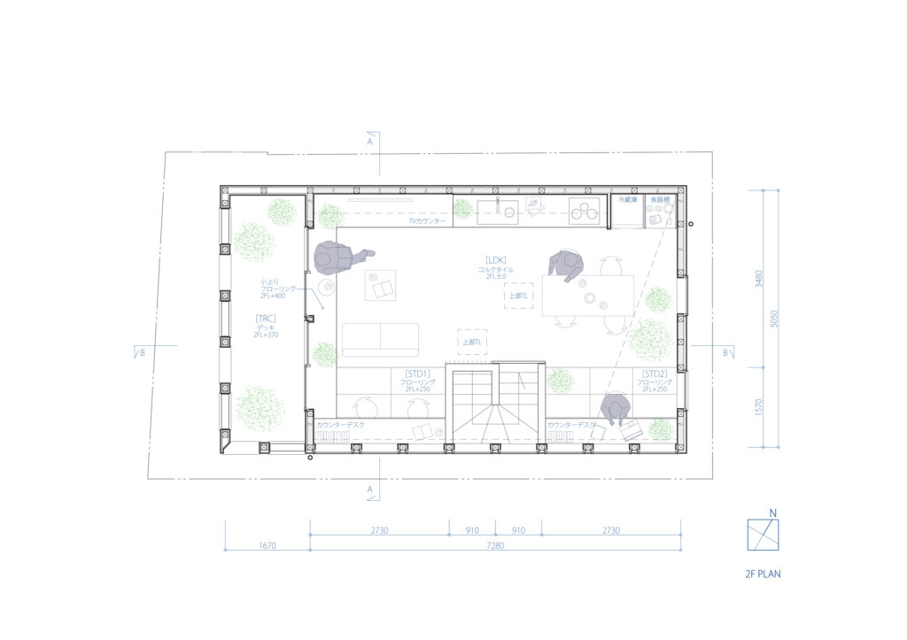
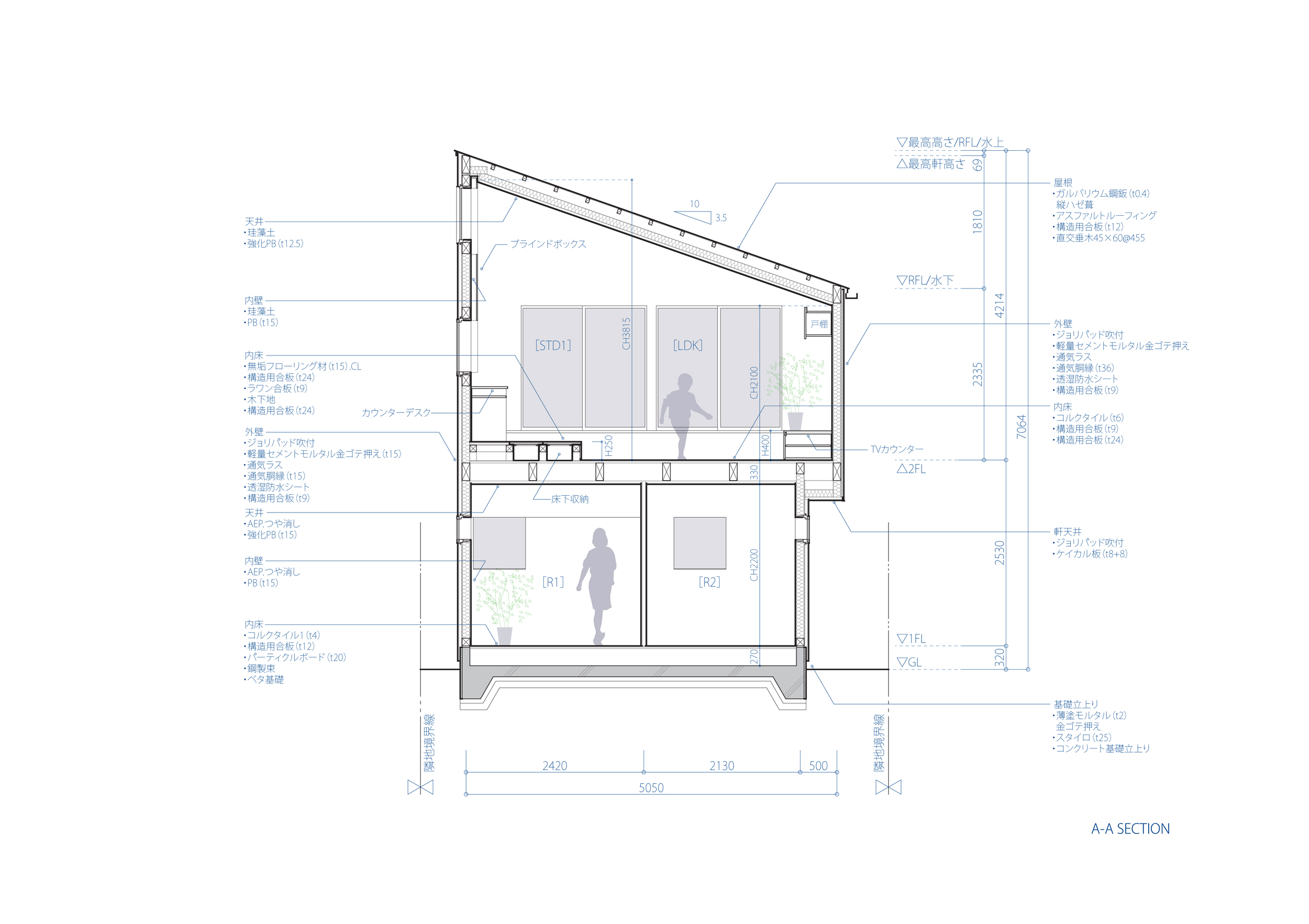
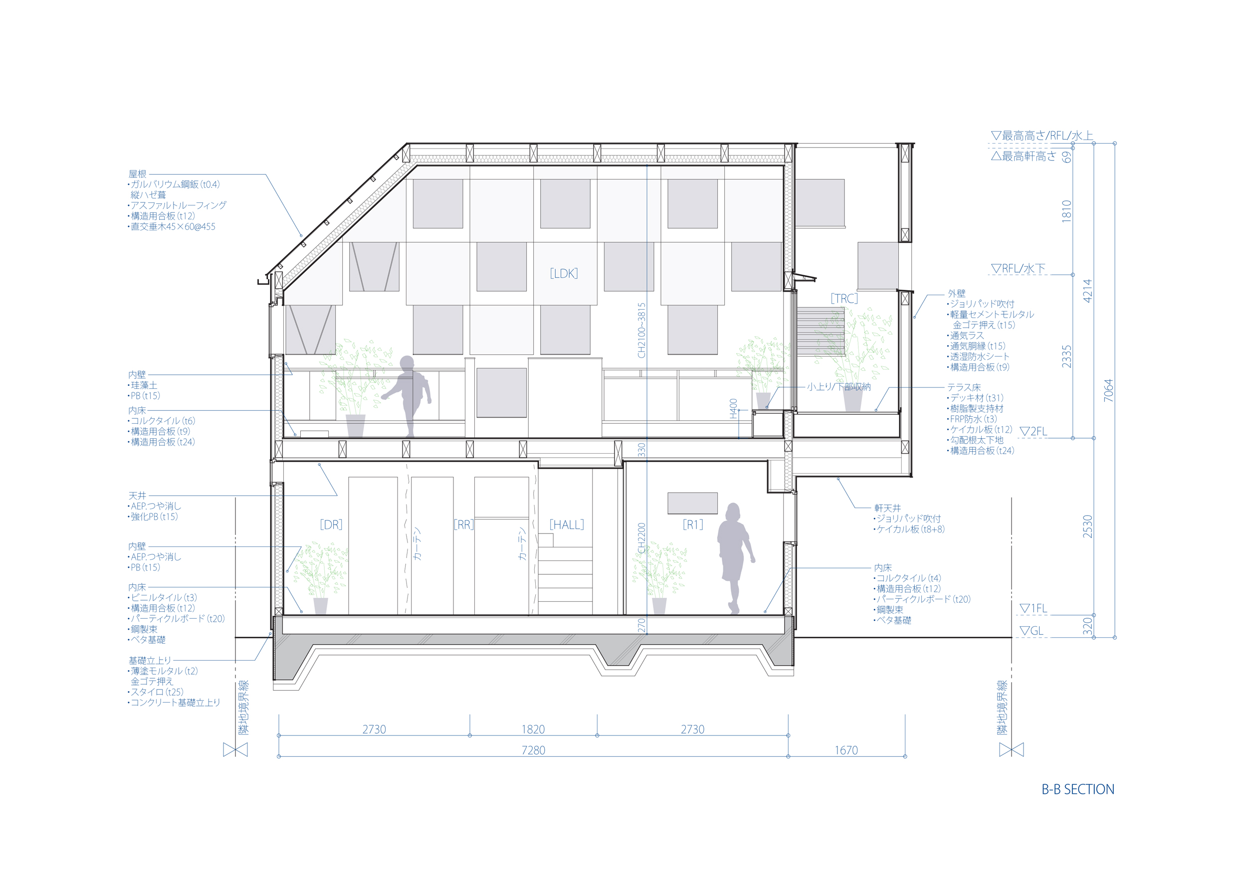
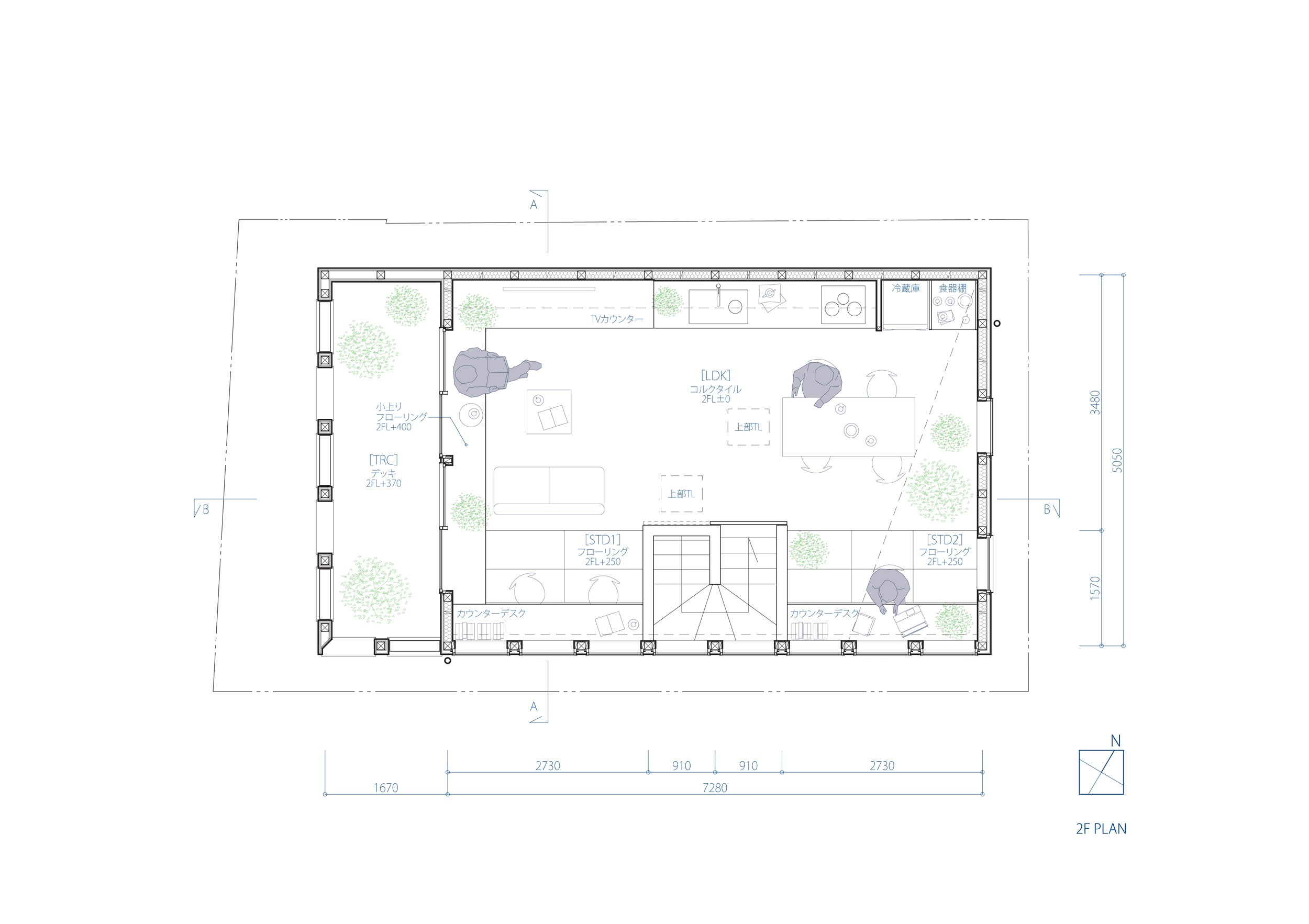
敷地は住宅街の路地突き当たりに位置し、四方を隣家に囲まれ、面積は21坪と文字どおり狭小でした。それでも建築主からは、外からのプライバシーは守り、かつ、明るく伸びやかに暮らしたいという要望がありました。21坪の敷地に建蔽率60%、容積率100%という厳しい条件も加わるなか、隣家の建ち方や空地の在り方、眺望の抜けなどを考察し、家族が集うLDKは2階の床すべてを使ったワンルームとしました。
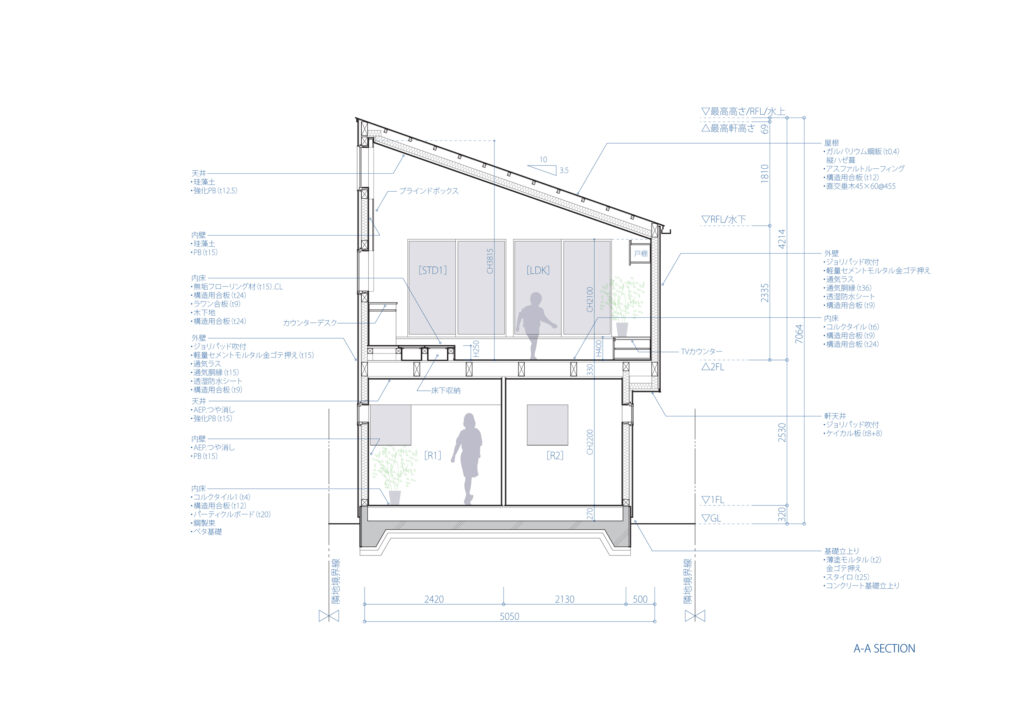
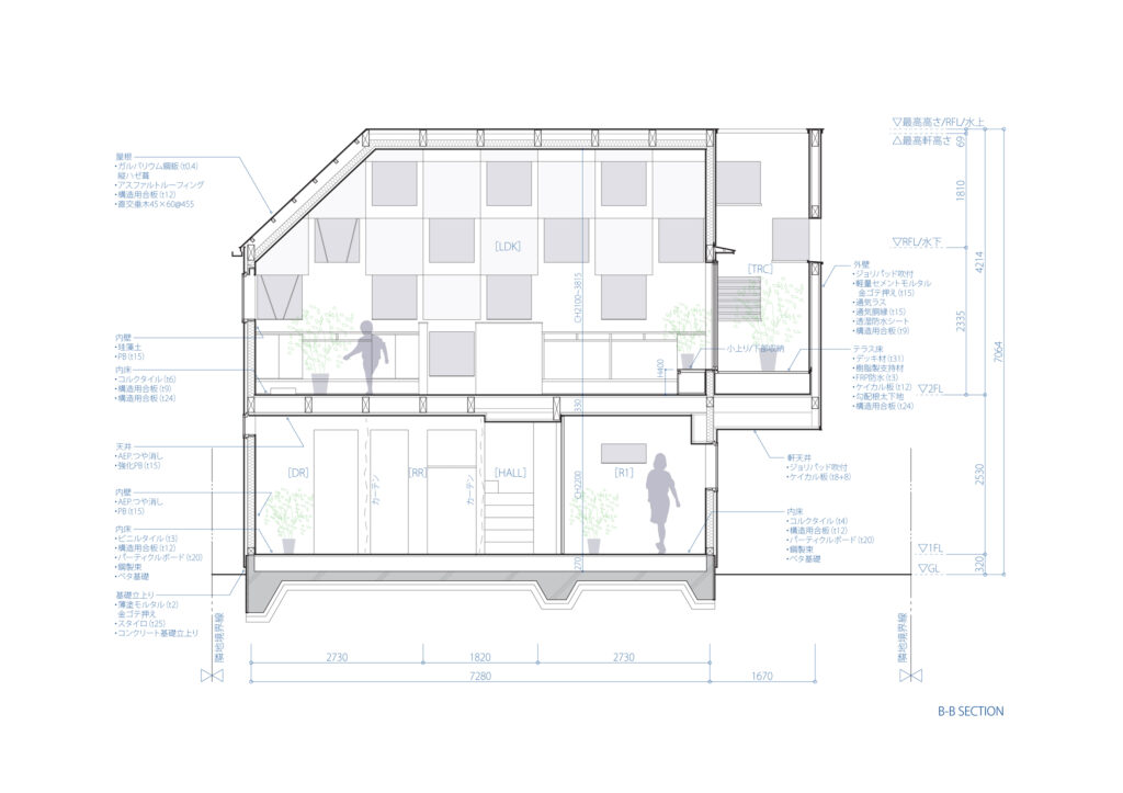
ワンルームLDKは南へ広がる勾配天井。高くなった南側の壁に、小さな窓が市松模様に配されています。外からは室内の様子が分かりにくく、室内からは空が見えて明るさと伸びやかさを感じられる工夫です。小さな窓とはいえ、間口いっぱい・天井いっぱいに配置することで、大きな開口と同等の開放感を得ています。
市松状の開口は、「東側の2スパン分に2.7倍耐力壁となる鋼製ブレースを入れることで実現しました」(阿蘓氏)。
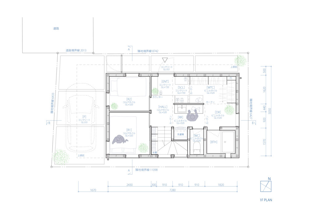
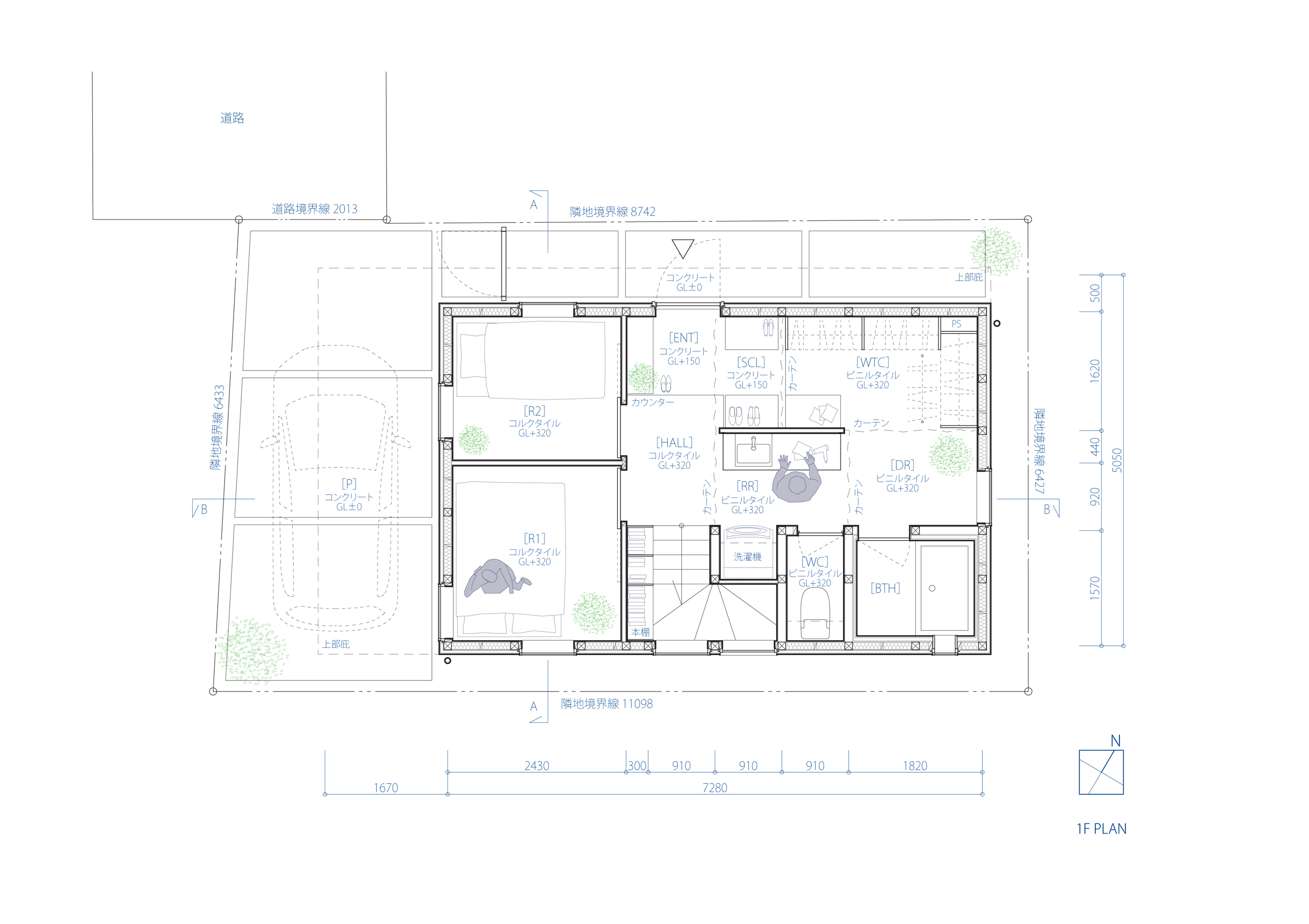
また、LDK以外の諸室は1階にまとめました。洗面を中心にトイレ、浴室、ウォークスルークロゼット、個室を回遊動線上に配し、機能的な動線となっています。1階を機能性に特化した空間とすることで、対照的に、2階のLDKワンルームがより伸びやかな空間に感じられます。
間取り 四方に隣家が迫る敷地に“閉”と“開”の要素を共存させる

2階平面図。2階全体(36.76㎡)をワンルームとし、家族が集い、のびのび生活できる空間とした。西側にテラスを設けて隣家との見合いに配慮するとともに、小上がりと床レベル・仕上げを揃えて限られた床面積を拡張している





















