
新授与所外観。柱は天然乾燥の天竜杉(樹齢 70年生から100年生のもの)の四寸角(120㎜)を使用、柱間は1.5間(2,730㎜)。仕口・継手の接合部など、構造金物を一切使用しない接合部の美しい納まりに目が留まる
東京都調布市にある天台宗の古刹・深大寺。昨今この界隈は、SNSの影響で一躍人気スポットとなっています。自然が豊かで、情緒あふれる茶屋や土産物屋が立ち並ぶ参道は、連日スマートフォンを片手に散策を楽しむ若者たちでにぎわっています。2025年12月16日、そんな深大寺に新しい授与所が開設されました。来る2033年に迎える開創1千300年記念事業の一環として、長年使用されてきた山門脇の授与所が建て替えられたのです。
設計を手がけたのは、木造建築や木材流通に精通する建築家・瀬野和広氏(瀬野和広+設計アトリエ)。「小規模な建物ではありますが、既存の歴史建造物とも調和し、長く残るものをつくりたいと思いました」(瀬野氏)。そのため、強度と耐久性に優れる天然乾燥の天竜杉にこだわり、独特の美しい木目や光沢を意匠にも生かしています。
「人工乾燥材は、乾燥の過程で細胞が破壊され、天然の樹脂成分(精油)が失われてしまいます。深大寺の境内には、長い歳月を経た木造建築が数多く残存している。そんななかで、こうした耐久性が乏しい木材を使用すれば、ほどなくその差は歴然となることでしょう。いにしえの建造物と同じ理屈で製材された木材を採用したこの授与所は、経年変化を重ねながら、この深大寺になじんでいくはずです」(瀬野氏)

外壁と屋根の断熱材には、コストパフォーマンスが高い高性能グラスウール「アクリアマット」(旭ファイバーグラス)を採用。開門中、授与台の建具は常に開放されるため、高度の温熱環境が求められるわけではないが、木造建築を長く使っていくために必要となる、丁寧な気密(調湿)処理も施されている。建屋を解体して移設する際にも便利

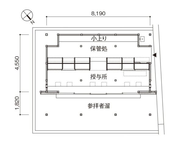
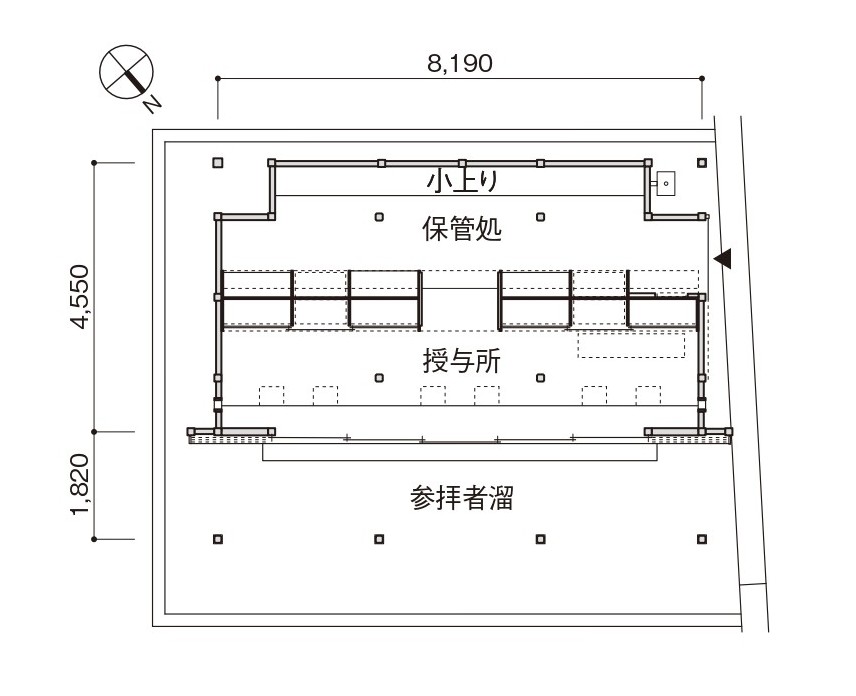
歴史ある茅葺きの山門(1695年[元禄8年]建立)の西側脇に建つ。意匠はあえて山門に寄せず、バランスを重視して設計したという。屋根は1寸勾配で、ガルバリウム鋼板立はぜ葺き、軒先の水切板金は折下唐草。垂木の1尺間(303㎜)に合わせて、板金職人が現場で立はぜも成形した。おかげで垂木とはぜが美しく一直線にそろっている。既製品では実現できない至高の納まり
NOTE 「深大寺授与所」で採用された製品
外部
構造材(天竜杉・天然乾燥材) 天竜T.S.ドライシステム協同組合
屋根(ガルバリウム鋼板)
棟換気包(ガルバリウム鋼板) 棟まどS形/タニタハウジングウェア
外壁(既調合漆喰) 村樫のしっくい/村樫石灰工業
耐力壁(耐力面材) モイスTM/双日建材
透湿防水ルーフィングシート ソリテックス・MENT3000・コネクト/エコ・トランスファー・ジャパン
断熱(外壁・高性能グラスウール) アクリアマット/旭ファイバーグラス
★関連記事:天竜杉の授与所を包む高性能グラスウール<PR>
断熱(床・押出法ポリスチレンフォーム断熱材3種bA) スタイロエースⅡ/デュポン・スタイロ
通気パッキン キソパッキンロング/城東テクノ
内部
内装材(床・壁・天井) 天竜T.S.ドライシステム協同組合
取材協力:瀬野和広[せの・かずひろ]

1957年山形県生まれ。1988年瀬野和広+設計アトリエを開設。良質な国産材(天竜杉・西山杉など)を使用した木造住宅・施設の設計を数多く手がけている。近年では中国での活動にも力を入れてており、2024年から中国・河北メディア学院大学美術設計院客員教授を務めている。主著に『これからの木造住宅のつくりかた』『これで完璧! 伝わる建築実施図面の描き方』(ともにエクスナレッジ)がある
瀬野和広氏の著書・主な掲載書籍はこちら
これからの木造住宅のつくりかた(建築知識書籍シリーズ)
現場写真で学ぶ実施図面の描き方
★関連書籍:「建築知識2026年2月号」
取材・文=贄川雪
【設計者・施工者の皆様へ】エクスナレッジ・オンライン掲載・設計事例大募集!















