間取り 単調にならないように、変化を感じられる空間をつくる
仕上げ 木の温もりとシャープさの好バランス

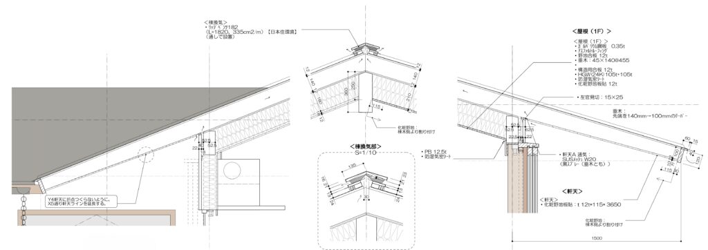
屋根はガルバリウム鋼板のキャップレス立はぜ葺き、軒天井は小節の杉板張り。高性能グラスウールの2重断熱によりしっかり断熱すると同時に、通気層を兼ねる垂木を伸ばすことで、深くシャープな軒をつくった。また、縦はぜの先端をテーパーにすることで、さらに軒先をすっきり見せている
NOTE 「緑地公園の家」で採用された製品
外部
屋根・小庇(ガルバリウム鋼板キャップレス立てはぜ葺き) デコシーム333・375/ビルトマテリアル
軒樋(ガルバリウム鋼板) スタンダード半丸120/タニタハウジングウェア
竪樋金具 スリムデンデン/タニタハウジングウェア
鎖樋 波紋/瀬尾製作所
外壁:アクリルシリコーン樹脂系左官材 マジックコート/フッコー モルタル下地工法/富士川建材工業
壁断熱(高性能グラスウール24K) 内装パラダイス/パラマウント硝子工業
気密シート ダンタイト/日本住環境
床断熱(押出法ポリスチレンフォーム断熱材1種bC) スタイロフォームIB/デュポン・スタイロ
防虫通気材 防虫ベンツSL18/日本住環境
棟換気部材 リッジベンツ/日本住環境
アルミ樹脂複合サッシ サーモスⅡ-H/L/LIXIL
玄関・ポーチ床 レンガタイル フラット(210×60×20㎜)/米澤煉瓦
中庭・回廊 オーズブリックOZ15-HD2(70φ×15mm)/国代耐火工業
内部
構造材 スギ(無垢・無等級材) リビング丸柱(φ150)は天竜杉/丸志木材
床(オーク無垢フローリングの上、クリアオイル塗装) フローリング/チャネルオリジナル
壁(EP)
壁(漆喰調クロス) Sikkui Cloth/チャネルオリジナル
サニタリー床(タイル) サーモタイル スレートⅡ/LIXIL
サニタリー壁(タイル) ライナー彩(カラー:LB803、目地:ベージュ)/ニッタイ工業
キッチン床(タイル) サーモタイル ソフラムⅡ/LIXIL
キッチン壁(タイル) ライナー彩(カラー:LB802、目地:ライトグレー)/ニッタイ工業
天井:スギ板上小節12㎜厚
取材協力:中尾雄介[なかお・ゆうすけ]

1980年兵庫県生まれ。一級建築士。2003年広島大学工学部卒業。’05年同大学院工学研究科修了。‘05年~NTTファシリティーズ一級建築士事務所勤務を経て、‘17年千葉県印旛郡になかおデザイン室設立。住宅をはじめとする建築物・インテリア・家具などの設計、まちづくりの企画提案を行う。2024年~東京造形大学非常勤講師
設計=なかおデザイン室
構造設計=ハシゴアーキテクツ
施工=工藤工務店
造園=季織苑
写真=小泉一斉
取材・文=後藤利英子
【設計者・施工者の皆様へ】エクスナレッジ・オンライン掲載・設計事例大募集!






















